斗式提升机是一种连续输送机械,利用均匀固接于无端牵引构件上的一系列料斗,在竖直或接近竖直方向内向上运送散料。它主要由运行部分(料斗与牵引胶带)、带有传动滚筒的上部区段、带有拉紧滚筒的下部区段、中间机壳、驱动装置、逆止制动装置等组成。斗式提升机主要适用于向上输送松散密度ρ<1.5t/m³粉状、粒状和小块状的无磨琢性和半磨琢性散状物料,如煤、砂、焦末、水泥、碎矿石等。
垂直输送,结构紧凑、占地面积小、简单,提升高度和输送量都较大;
密封性好,能在全封闭的罩壳内工作;
过载的敏感性大,斗和牵引件易损,不适应输送大块物料,必须均匀加料,否则易堵塞。
斗式提升机可分为胶带式和链条式,结构紧凑、占地面积小、密封性能好。胶带式斗提机输送轻巧、灵便、维修方便、噪音低,适用于输送密度小于1.5的粉状、颗粒状的物料输送,物料温度一般在100摄氏度以下。链条式斗提机用于输送量大且物料密度大于1.5的粉状、颗粒状的物料输送,物料温度一般在100摄氏度以上。

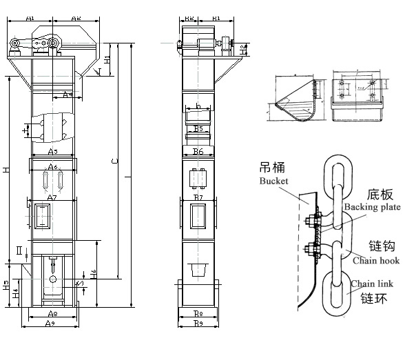
1.料斗:用于装载物料并进行提升。
2.牵引构件:如胶带或链条,带动料斗运动。
3.驱动装置:提供动力,通常包括电机、减速器等。
4.上下滚筒(或链轮):改变牵引构件的运动方向。
5.机壳:形成封闭的输送通道,防止物料外溢和灰尘飞扬。
6.张紧装置:用于调整牵引构件的张紧度,保证正常运行。


胶带式斗提机型号:
| 型号 | TD100 | TD130 | TD160 | TD250 | TD315 | TD400 | TD500 | TD600 |
| 转速(米/秒) | 0.4-1.4 | |||||||
| 输送量(立方/小时) | ≤3 | ≤4 | ≤20 | ≤38 | ≤42 | ≤68 | ≤96 | ≤148 |
| 提升高度(米) | ≤12 | |||||||
链条式斗提机型号:
| 型号 | TH160 | TH200 | TH250 | TH315 | TH400 | TH500 | TH630 |
| 转速(米/秒) | ≤1.0 | ||||||
| 输送量(立方/小时) | ≤15 | ≤25 | ≤35 | ≤59 | ≤94 | ≤118 | ≤185 |
| 提升高度(米) | 10-40 | ||||||
斗式提升机的应用非常广泛,其中包括以下几个行业:
1.建材行业:在水泥、石灰石、石膏等材料的输送中,斗式提升机是最为常见和有效的一种输送设备。它们可以将原料从储存罐或装载设备输送到各个工作站点,同时也可以将成品输送到仓库或包装区。
2.化工行业:主要用于输送颗粒状物料,如氧化铝、硫酸钾、磷酸二氢钾、碳酸钙等。同时也可用于输送液态物料。
3.冶金行业:通常用于炼铁、炼钢、铸造等工艺过程中的物料输送,如铁矿石、焦炭、石灰等。
4.食品行业:主要用于输送谷物、花生、大豆等散装物料,并广泛应用于面粉加工、饲料加工、乳制品加工等领域。
5.矿山行业:通常用于将矿石、煤炭等散装物料从井口输送到地面或将其运往其他工艺流程设备。

国家专利产品
CE认证
知识产权认证
质量体系认证
省著名商标
环保认证
曾获省/市高新技术企业
省/市科技进步奖
省/市诚信企业等荣誉

三十年专注于精细化粉体奶茶视频18未满在线观看的制造,使得奶茶视频黄在线观看积累了大量的生产和服务经验,也为奶茶视频黄在线观看更多客户,解决了粉体加工的难题。

我公司将创新视为公司发展的生命之源,迄今已获得40多项国内及国际专利,很多类型的产品一机多项专利。

公司引进多套先进设备,使我公司造出来的奶茶视频18未满在线观看重量减轻且承载力更强,运行更加稳定、节能明显的同时又提高了生产效率。

我司专业承接精细粉体加工生产线的设计与生产项目,从破碎、筛分、输送、给料、混合到包装,为您提供一站式服务。














免费定制您的专属解决方案